Mieszkanie na sprzedaż bydgoszcz, Osiedle Leśne

1 pokoj
32.41 m²
11 385,37 zł/m2
5 piętro
NST-MS-42
Oblicz ratę kredytu

369 000 zł

Mieszkanie na sprzedaż
Nowa oferta

Szczegóły oferty

Symbol oferty NST-MS-42
Powierzchnia 32,41 m²
Powierzchnia użytkowa [m2] 32,41 m²
Liczba pokoi 1
Liczba sypialni 1
Rodzaj budynku apartamentowiec
Technologia budowlana silikat
Standard
Opłaty w czynszu wywóz nieczystości, woda ciepła, sprzątanie, ogrzewanie, monitoring, fundusz remontowy, Części wspólne, administracja
Opłaty wg liczników prąd
Piętro 5
Liczba pięter w budynku 5
Stan lokalu do wykończenia
Mies. czynsz admin. 650 PLN
Okna PCV
Instalacje nowe
Balkon brak
Rok budowy 2024
Widok na inne budynki
Gaz brak
Woda ciepła - miejska
Dojazd asfalt
Otoczenie las
Ogrzewanie podłogowe
Umeblowanie częściowo umeblowane
Winda tak
Liczba wind 1
Usytuowanie jednostronne
Drzwi antywłamaniowe tak
Pomieszczenia
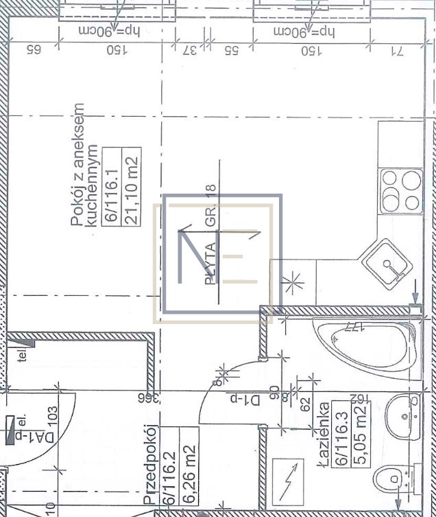
Powierzchnia pokoi 21,1 m2
Podłogi pokoi panele podłogowe
Typ kuchni jasna z oknem
Rodzaj kuchni aneks kuchenny - połączony z salonem
Podłoga kuchni panele podłogowe
Wyposażenie kuchni zlewozmywak z baterią, szafki wiszące, szafki stojące, płyta indukcyjna, lodówko-zamrażarka,
Typ łazienki razem z wc
Liczba łazienek 1
Powierzchnia łazienki [m2] 5.05 m2
Glazura łazienki glazura
Podłoga łazienki gres
Wyposażenie łazienki WC, umywalka, pralka, lustro, kabina prysznicowa
Liczba przedpokoi 1
Powierzchnia przedpokoi 6.26 m2
Podłoga przedpokoi panele podłogowe

Opis nieruchomości

Zapraszam Państwa do zapoznania się z ofertą sprzedaży jednopokojowego, słonecznego mieszkania z aneksem kuchennym, położonego na Osiedlu Leśnym.

INFORMACJE O BUDYNKU: 
Budynek został wybudowany w 2024 roku z cegły silniki, docieplony styropianiem i wełną 18cm. 
Podłączenie do  sieci miejskiej wodno-kanalizacyjnej i grzewczej;
Wokół budynku znajduje się wiele miejsc postojowych ogólnodostępnych;
Budynek sześciokondygnacyjny;
Nieruchomość znajduje się na osiedlu strzeżonym z automatyczną bramą i monitoringiem.
Apartamentowiec posiada system elektronicznej kontroli dostępu.

INFORMACJE O MIESZKANIU:
Nieruchomość wykazuję powierzchnię użytkową 32,41 m2. 
Lokal znajduje się na piątym z pięciu pięter.
Mieszkanie o ekspozycji południowo-zachodniej.
Urządzone i  wyposażone w zabudowy meblowe, sprzęt AGD i oświetlenie. 
Możliwość dokupienia komórki lokatorskiej 5m2.
W mieszkaniu znajdują się rolety zewnętrzne i wideodomofon.
Do lokalu prowadzi indywidualny przedsionek do którego mają dostęp tylko dwa mieszkania.

Okna: PCV trzyszybowe;
Drzwi: antywłamaniowe;
Ściany: gładzie, farba, glazura;
Podłogi: gres, gładzie gipsowe malowane;
Instalacja elektryczna: miedziana; 
Ogrzewanie: sieć miejska, podłogówka, w łazience grzejnik;
Woda ciepła: sieć miejska;
 
ROZKŁAD: 
Salon z aneksem kuchennym o powierzchni 21,1m2 (ekspozycja południowo-zachodnia);
Przedpokój o powierzchni 6.26 m2; 
Łazienka z WC o powierzchni 5.05 m2; 

STAN PRAWNY I EKSPLOATACJA:
Mieszkanie stanowi Odrębne Własnościowe Prawo do Lokalu. Pełen czynsz eksploatacyjny oscyluje na poziomie 650 zł/miesiąc za jedną osobę, dodatkowo płatny prąd według zużycia.

LOKALIZACJA:
Osiedle Leśne stanowi pożądany punkt lokalizacyjny pod względem panującej tam ciszy i spokoju, bliskości terenów zielonych, ścieżek rowerowych, dogodnego dostępu do punktów handlowo-usługowych, placówek medycznych, szkół i przedszkoli a to tylko niektóre walory wskazanej lokalizacji.

- Restauracja 450m;
- Sklep osiedlowy 450m;
- Przystanek autobusowy 450m;
- Lidl 1km;
- Przedszkole 1,5km;


Zapraszam do kontaktu! 

Agent prowadzący ofertę:
Olga Kotyńska

Lokalizacja nieruchomości

Kalkulatory

Kalkulator kredytowy

Wysokość raty

PLN
%

Kalkulator kosztów

Podatek od czynności cywilno-prawnych

Taksa notarialna
(opłata notarialna)

Wniosek o wpis do KW

VAT od prowizji
agencji nieruchomości

VAT od taksy notarialnej
(opłaty notarialnej)

Prowizja agencji nieruchomości

Wypisy aktu notarialnego

Razem

Uwaga: mogą wystąpić dodatkowe opłaty za założenie księgi wieczystej oraz ustanowienie hipoteki.

PLN
PLN
PLN
PLN
PLN
PLN
%
PLN

Agent

Proszę wprowadzić poprawne imię i nazwisko
Proszę wprowadzić poprawny numer telefonu
Proszę wprowadzić poprawny adres e-mail
Proszę zaznaczyć wymagane zgody
Rozwiąż równanie:
12 1
Niepoprawny wynik