6 pokoi
260.00 m²
2 611,54 zł/m2
NST-DS-5
Oblicz ratę kredytu

679 000 zł

Dom na sprzedaż
Oferta na wyłączność

Szczegóły oferty

Symbol oferty NST-DS-5
Powierzchnia 260,00 m²
Powierzchnia użytkowa [m2] 214,73 m²
Powierzchnia działki [m2] 1 975 m²
Liczba pokoi 6
Liczba sypialni 5
Rodzaj domu wolnostojący
Opłaty wg liczników prąd
Liczba pięter w budynku 1
Garaż dwustanowiskowy
Okna PCV 3 szyby, ciepły montaż
Zagosp. działki niezagospodarowana
Ukształtowanie działki płaska
Kształt działki trapez
Pokrycie dachu blacha panelowa
Stan budynku do wykończenia
Ogrodzenie działki brak
Rok budowy 2025
Gaz brak
Woda w drodze
Dojazd asfalt
Otoczenie działki niezabudowane
Prąd na działce
Kanalizacja brak
Pomieszczenia
Powierzchnia pokoi 36,46; 18,29; 11,76; 15,75; 18,52; 18,22  m2
Typ kuchni jasna z oknem
Rodzaj kuchni aneks kuchenny - połączony z salonem
Powierzchnia kuchni 12,36 m2
Liczba łazienek 3
Powierzchnia łazienki [m2] 8,44; 11,16; 12,64 m2
Liczba przedpokoi 2
Powierzchnia przedpokoi 12,8; 13,21 m2
Michał Lizik

Michał Lizik


Nr licencji: 27433

Napisz wiadomość 24 Ofert

Opis nieruchomości

Zapraszam Państwa do zapoznania się z ofertą nowoczesnego domu z poddaszem użytkowym, mieszczącego się w bardzo cichym i spokojnym punkcie miejscowości Bądkowo. Nieruchomość gruntowa zabudowana jest budynkiem mieszkalnym w stanie surowym zamkniętym oknami bez drzwi i bramy garażowej. Z gotowym szczegółowym projektem wykończenia wnętrza domu.

DZIAŁKA
Nieruchomość składa się z dwóch działek o powierzchniach  1013 m2 i 962 m2. Działki są płaskie, po połączeniu dwóch działek front wykazuje szerosość 54,2 m. Działka graniczy z działkami niezabudowanymi. Dojazd do działki to gminna droga asfaltowa.

MEDIA

  • woda: sieć wprowadzona do domu w garażu;
  • prąd: doprowadzony do skrzynki;
  • kanalizacja: do wykonania szambo, w przyszłym roku będzie prowadzona kanalizacja gminna;
  • internet: światłowód przed nieruchomością.

OPIS DOMU
Budynek mieszkalny wolnostojący, sześciopokojowy, z poddaszem użytkowym, bez podpiwniczenia. Wybudowany w 2025 roku, w technologii tradycyjnej, murowanej. Powierzchnia użytkowa domu wynosi 214,73 m2. W bryle budynku znajduje się również dwustanowiskowy garaż o powierzchni 37,34 m2. Budynek w stanie deweloperskim, realizowany podstawie własnego projektu. Dom zaprojektowany pod kątem domu energooszczędnego z pompą ciepła, rekuperacją.

ROZWIĄZANIA KONSTRUKCYJNO-MATERIAŁOWE

  • strop nad parterem gęstożebrowy typu Teriva;
  • konstrukcja dachu drewniana, deskowana płytą osb, 
  • pokrycie dachu: blacha panelowa na rąbek z całym orynnowaniem poziomym i pionowym,
  • ściany nośne pustaków ceramicznych porotherm 24 cm;
  • okna: 3 szybowe PCV;
  • wieńce, fundamenty, słupy nośne lane z litego betonu,
  • wentylacja wg. projektu mechaniczna - rekuperacja, zarówno w pomieszczeniach suchych jak i tych narażonych na parę wodną.
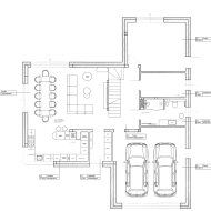
INWENTARYZACJA
* Parter o łącznej powierzchni 139,69 m2:
  • wiatrołap: 5,14 m2;
  • hol: 13,21 m2;
  • pokój dzienny z jadalnią: 36,46 m2;
  • kuchnia: 12,36 m2;
  • łazienka: 8,44 m2;
  • sypialnia: 18,29 m2;
  • kotłownia/pralnia: 8,15 m2;
  • garaż jednostanowiskowy: 37,34 m2.
* Piętro o łacznej powierzchni 120,53 m2:
  • pokój: 11,76 m2;
  • pokój: 15,75 m2;
  • pokój: 18,52 m2;
  • sypialnia: 18,22 m2 z łazienką 11,16 m2 i garderobą 12,51 m2;
  • łazienka: 12,64 m2;
  • antresola: 12,8 m2;
  • schody: 4,47 m2.    
LOKALIZACJA

Dom umiejscowiony jest w cichej i spokojnej lokalizacji miejscowości Bądkowo, w której znajdują się: 
Żabka,
- Kwiaciarnia,
- Restauracja,
- Kawiarnia Pistacchio,
- plac zabaw, park, łowisko Bądkowo,
- Zespół szkolno-przedszkolny.


Zapraszam do kontaktu !

Agent prowadzący ofertę:
Michał Lizik
tel. 
507-282-033

Lokalizacja nieruchomości

Kalkulatory

Kalkulator kredytowy

Wysokość raty

PLN
%

Kalkulator kosztów

Podatek od czynności cywilno-prawnych

Taksa notarialna
(opłata notarialna)

Wniosek o wpis do KW

VAT od prowizji
agencji nieruchomości

VAT od taksy notarialnej
(opłaty notarialnej)

Prowizja agencji nieruchomości

Wypisy aktu notarialnego

Razem

Uwaga: mogą wystąpić dodatkowe opłaty za założenie księgi wieczystej oraz ustanowienie hipoteki.

PLN
PLN
PLN
PLN
PLN
PLN
%
PLN

Proszę wprowadzić poprawne imię i nazwisko
Proszę wprowadzić poprawny numer telefonu
Proszę wprowadzić poprawny adres e-mail
Proszę zaznaczyć wymagane zgody
Rozwiąż równanie:
23 2
Niepoprawny wynik